
As you may remember, the owner of the lot at 51 Little West 12th Street (between the Brass Monkey and the High Line) has asked for a zoning variance to build a grossly inappropriate 14-story, 203′ tall luxury residential sliver tower on this low-rise street. The decision whether to grant this variance will be made by the Board of Standards and Appeals, which held its first hearing on this application last December. The BSA will hold a second hearing this coming TUESDAY, February 24th.
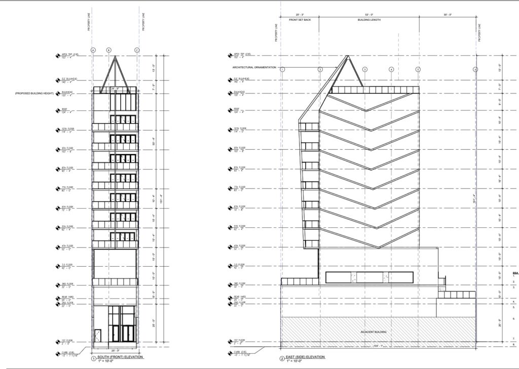
At the first hearing, the BSA expressed a great deal of skepticism about the application and told the applicant to come back with a design for a smaller tower. The applicant has now done so – the new design is 10 stories and 153′ tall. This is obviously an improvement, but a 153′ tall luxury residential sliver tower would still be completely inappropriate at this location.
If you are concerned about this unsuitable development in our community, here are two things you can do. First, write a brief message to the BSA asking that they deny this application:
Use this form on the BSA website.
Reference calendar # 2025-22-BZ, and use any or all of the points mentioned below.
Second, you can attend and speak briefly at the BSA hearing:
Tuesday, February 24th, meeting starts at 10:00 AM
Instructions for participating in person or via zoom here.
This item is 3rd on the agenda so it will probably be heard in the late morning, but it’s not possible to know for sure.
Save Gansevoort has submitted additional written testimony to the BSA opposing this application. Please read it if you would like detailed information about our concerns.
We believe the applicant has not met the criteria necessary to be granted a residential zoning variance in this Manufacturing (and commercial) District. These criteria include: the site must have unique conditions that create an economic hardship to the developer (these conditions cannot be self-imposed), the variance must not “alter the essential character” of the surrounding district, and the applicant must prove the requested variance is the minimum necessary to make a reasonable economic return on the property.
In your message, you can make some or all of the following points:
• The applicant argues that the site’s vacancy makes it unique. The vacancy results from a demolition order that the Department of Buildings issued in 2009 because the applicant’s building on the site was structurally unstable. The applicant claims this structural instability was caused by the construction of the adjoining Standard Hotel, and therefore was not self-imposed. However, the applicant has provided no evidence to support this claim, and the applicant has not explained the multiple DOB violations that indicate the structural instability was due to the applicant’s unpermitted and incomplete construction of a 4th floor on top of the building, and to inadequate maintenance.
• The applicant claims that a residential variance would not alter the essential character of the district in part because 13 buildings in the district already contain residential uses. However, New York City’s official land use map shows that at least 7 of these 13 buildings in fact contain no residential uses.
• The two primary BSA precedents that the applicant cites (at 128 West 26th Street and 132 West 26th Street) state that residential use variances were appropriate at these locations because the surrounding area was already highly residential (in fact, 40% of the sites within a 400′ radius were residential). This is simply not the case with 51 Little West 12th Street—the entire M1-5 district in which it is located is almost exclusively non-residential.
• The applicant’s Economic Analysis fails to account for the unique and extraordinary strengths of 51 Little West 12th Street’s location. It is directly across the street from the planned future entrance to the Whitney Museum, immediately adjacent to the High Line, one block from the Hudson River Park and Little Island, and across the street from the Gansevoort Market Historic District, one of New York City’s most fashionable landmark districts. None of the office or restaurant comparables on which the analysis bases its conclusions reflect the value of such a location.
• *IF* despite all of the above the BSA decides to grant the requested residential variance, it should insist that the visual obtrusiveness of the building be reduced. The ornamental arrowhead that tops the building and adds nearly 20′ to its height should be removed. The height of the 20′ tall first floor and the 20′ tall third floor should be reduced. The large unenclosed space at the base of the tower should be enclosed, which would both add to the value of the ground-floor restaurant and reduce the amount of bulk available for the upper floors.









